Ismertető
Győr közelében Rábapatonán, újonnan épülő, igényes kialakítású, tégla építésű családi ház leköthető.
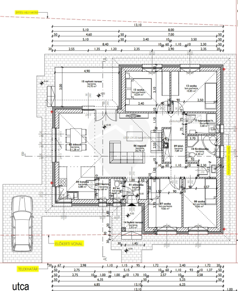
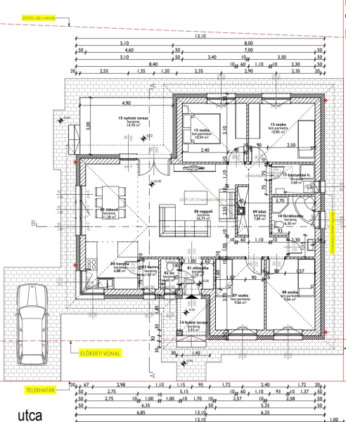
A nappali + négy szobával(vagy akár több szobával is kérhető ) ingatlan alapterülete nettó 110 m2, mely igény szerint módosítható.
A praktikusan tervezett házban a szobákon kívül tágas és napfényes amerikai konyhás nappali, gardrób, kamra, szélfogó, közlekedő, fürdőszoba, háztartási helyiség és egy külön mellékhelyiség is kialakításra kerül.
Az élhető méretű telek összesen 1000 m2-es, mely 30%-ban beépíthető.
A feltüntetett vételár a nettó emelt szintű fűtés kész árat és a telek árát tartalmazza!
Továbbá az ár tartalmazza a komplett tervező díjat(gépészet, metszetek, statika, energetika, engedélyek), plusz egy inverteres(hűtő-fűtő) klímát!
A részletes műszaki leírást és az Építőipari cég weboldalát kérésére e-mailben elküldöm.
Más az elképzelése? Válassza ki Ön a saját elképzeléseinek megfelelő alaprajzot!
Amennyiben teljesen egyedi tervezést szeretne, az is lehetséges!
A képek látványtervek.
Jól átgondolt tervezés, megfelelő szakmai tudás és háttér garantálja a MINŐSÉGI OTTHON megvalósítását!
További kérdés esetén állok rendelkezésére!
Amennyiben megbízható építtetőt szeretne, referenciamunkákkal, minőségi anyagokkal és kivitelezéssel, hívjon bizalommal akár hétvégén is!
Teljes körű ügyintézéssel:
- ügyvéd
- biztosítás
- hiteltanácsadás
- Generálkivitelezés
- teljeskörű ingatlanfelújítás
- CSOK, babváró, áfa visszaigénylés - állunk rendelkezésére!
Részletek
-
Építés éve:
2025 -
Szobák száma:
5 -
Állapot:
új -
Fűtés:
cirkó -
Épület típusa:
családiház -
Terasz:
20 m2 -
Kilátás:
udvari -
Tájolás:
DNY -
Telekméret:
1000 m2 -
Övezet:
nincs adat -
Tetőtér:
nincs adat
