Ismertető
Modern elegancia Győr-Kisbácsán – Új építésű ikerház prémium kivitelben.
Nettó alapterület: 147 m2 (113 m2 lakótér + 21 m2 gépkocsi tároló + 25 m2 terasz, erkélyek) + 300 m2 telek + 3 db gépkocsi parkoló.
A lakóépület jelenlegi készültségi szintje emelt szintű fűtéskész állapotú, továbbá az ingatlan vételára tartalmazza a 300 m2-es telekrészt, a felépítményt, a kerítést, az épített kukatárolót, 3 db gépkocsi parkolót, szegélyezett tereprendezést, térburkolatokat és járdákat, az önálló közüzemi mérőórákat, valamint a lenti leírásban olvasható műszaki tartalmat.
Az ingatlanok kulcsrakész befejezését is vállaljuk a leendő tulajdonos elképzelései és megbízása szerint, rövid határidejű teljesítéssel.
A lakóépület ismertetése:
A földszinten található: előtér, fürdőszoba (mosdó, zuhanyzó, wc), nappali-étkező-konyha, közlekedő, lépcsőtér és tároló került kialakításra.
A nappalihoz kapcsolódik a terasz és a házat körülölelő zárt udvar.
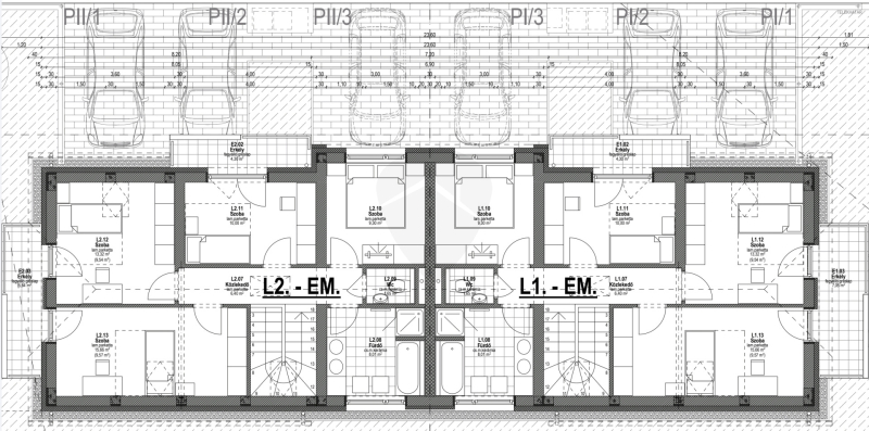
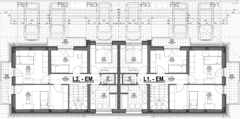
Az emeleten található: 4 hálószoba, fürdőszoba (dupla mosdó, zuhanyzó, fürdőkád), külön mellékhelyiség, közlekedő és 2 db erkély került kialakításra.
Földszinti helyiséglista:
- Előtér 3,42 m2
- Fürdőszoba 3,60 m2
- Nappali-étkező 25,76 m2
- Konyha 6,84 m2
- Közlekedő 2,90 m2
- Lépcsőtér-tároló 6,30 m2
- Garázs 21,30 m2
- Terasz 14,10 m2
Emelet:
- Közlekedő 6,40 m2
- Fürdőszoba 8,01 m2
- Wc 1,65 m2
- Szoba I. 9,30 m2
- Szoba II. 10,00 m2
- Szoba III. 13,32 m2
- Szoba IV. 15,66 m2
- Erkély I. 4,30 m2
- Erkély II. 7,05 m2
Műszaki tartalom, energetikai besorolás, fűtési rendszer, felhasznált építőanyagok, szerkezetek az emelt szintű fűtéskész állapotra vonatkozóan:
- kulcsrakész befejezés (leendő tulajdonos elképzelései és megbízása szerint, rövid határidejű teljesítéssel)
- energetikai besorolás: A besorolás
- inverteres hűtő-fűtő klíma alapszerelés (5 db – 4 db hálószoba + nappali)
- lakóegységenként különálló közüzemi mérőórák (1-1 db villanyóra, 1-1 db gázóra, 1-1 db vízóra a használati vízhez + 1-1 db vízóra a kerti locsolóhoz)
- lakóegységenként kiépített elektromos hálózat (230V – 32A)
- lakóegységenként Vaillant típusú kondenzációs gázkazán, szintenként külön szabályozható termosztátokkal (földszinti + emelet)
- helyiségenként külön körökön működő és szabályozható padlófűtés
- lefűzött villanyszerelés és kapcsolószekrény
- alapozás: vasalt beton sávalap (C25/30-XC2-24-F3)
- vasalt aljzat: helyszíni monolit vasbeton szerkezet (C20/25-XC1-24-F3)
- födém: helyszíni monolit vasbeton szerkezet (C25/30-XC1-16-F3)
- pillérek: helyszíni monolit vasbeton szerkezet (C25/30-XC1-16-F3)
- lépcsőszerkezet: helyszíni monolit vasbeton szerkezet (C20/25-XC1-16-F3)
- lábazati falak: Leier ZS-30 zsaluelem, vasalva, kibetonozva (C20/25-XC1-24-F3)
- főfalak (külső és belső harántfalak): Porotherm 30 N+F tégla
- főfalak (lakóegységek között - belső hanggátlás): Leiertherm 30 AKU MD
- válaszfalak: Leiertherm 10 N+F, Ytong PVE
- lábazati hőszigetelés: 12,0 cm – Ravatherm XPS (0,034 W/mK)
- homlokzati hőszigetelés: 15,0 cm – Austrotherm Grafit Reflex (0,031 W/mK)
- földszinti padló hőszigetelés: 10,0 cm – Austrotherm AT-N 100 (0,037 W/mK)
- emeletközi padló hőszigetelés: 4,0 cm – Austrotherm AT-L2 úsztató réteg (0,044 W/mK)
- tető- és padlástéri hőszigetelés: 25,0 cm – Isover Domo Plus Twin 100/50 (0,038 W/mK)
- tető- és padlástéri térelhatárolás: Knauf 12,5 mm tűzgátló és impregnált építőlemezek
- műanyag típusú homlokzati nyílászárók, tok- és szárnyszerkezetek (80 mm), több ponton záródó bejárati ajtó és ablakok, 3 rétegű hőszigetelt üvegezéssel (44 mm), szín: kívül – antracit, belül – fehér
- beépített vakolólapos alumínium redőnyszerkezet, szín: antracit
- Velux tetőtéri ablak, 3 rétegű hőszigetelt üvegezéssel, szín: kívül – antracit, belül – fehér
- Hörmann RenoMatic hőszigetelt szekcionált garázskapu, motoros meghajtással (hálózatról és távirányítóval egyaránt nyitható-csukható), szín: kívül – antracit, belül – horganyzott
- Schöck Isokorb hőhídmegszakító betételem az erkélyek teljes hosszában
- Bramac Tectura Protector betoncserép, szín: antracit
- színes alumínium korcolt lemezfedés, szín: antracit
- Lindab Rain-Line ereszcsatorna és lefolyó, szín: antracit
- Baumit rendszerrel készített vékony- és lábazati homlokzati vakolat
- Baumit rendszerel készített belső vakolat (simított belső vakolat)
- dilatált esztrich aljzatbeton a földszinten és emeleten egyaránt (burkolat nélkül)
- tüzihorganyzott acélszerkezetű korlátok
- épített kerítés (beton sávalap + Leier ZS-20 zsaluelem, vasalva, kibetonozva + 3D horganyzott „Sendsimir” kerítéstábla)
- épített kukatároló és villamosfogadó az utcafronton (beton sávalap + Leier ZS-15 zsaluelem, vasalva, kibetonozva)
- udvari járdák és 3-3 db gépkocsi beálló térburkoltak (Leier beton térburkolat)
Az épület megvalósítása a legkorszerűbb építőanyagok és szerkezetek felhasználásával, magas minőségben és állandó műszaki felügyelet mellett történt.
A környék csendes és biztonságos, ideális hely akár családok számára is, ugyanakkor a közlekedés is kitűnő: a közeli buszmegállók és az autóút könnyű hozzáférést biztosítanak a város többi részéhez, így gyorsan elérheted Győr belvárosát is.
A környék ellátottsága kiváló, hiszen boltok, iskolák és egészségügyi intézmények mind könnyen megközelíthetők.
Ez az ingatlan nem csupán egy új otthon, hanem egy életstílus is, amely a kényelem és a modern technológia tökéletes ötvözete.
Ha szeretnél többet megtudni erről a különleges lehetőségről, vagy kérdéseid lennének, ne habozz keresni!
Bizalommal állok rendelkezésedre, hogy segítsek megtalálni a számodra legmegfelelőbb ingatlant.
A vásárlás finanszírozásához Otthon start program, CSOK, CSOK+ és kamattámogatott hitel igénybe vehető.
Teljes körű ügyintézéssel:
- Ügyvéd
- Biztosítás
- Generálkivitelezés
- Ingatlanértékesítés
- Teljeskörű ingatlanfelújítás
- Bankfüggetlen hiteltanácsadás
- CSOK, babaváró, áfa visszaigénylés - állunk rendelkezésére!
Részletek
-
Építés éve:
2025 -
Szobák száma:
5 -
Állapot:
új -
Fűtés:
cirkó -
Épület típusa:
ikerház -
Terasz:
25 m2 -
Kilátás:
kertre néz -
Tájolás:
DK -
Telekméret:
300 m2 -
Övezet:
nincs adat -
Tetőtér:
nincs adat
